CASA VIÑA 13

Año

2022
Reforma de vivienda

Localización:

Vejer de la Frontera. Cádiz

Estado:

finalizado

Superficie:

77 m2

Situada en un enclave privilegiado, en uno de los puntos más altos del centro histórico de Vejer de la Frontera. Nos encontramos en una vivienda que forma parte de una comunidad y cuya configuración es la propia de un corral de vecinos. 

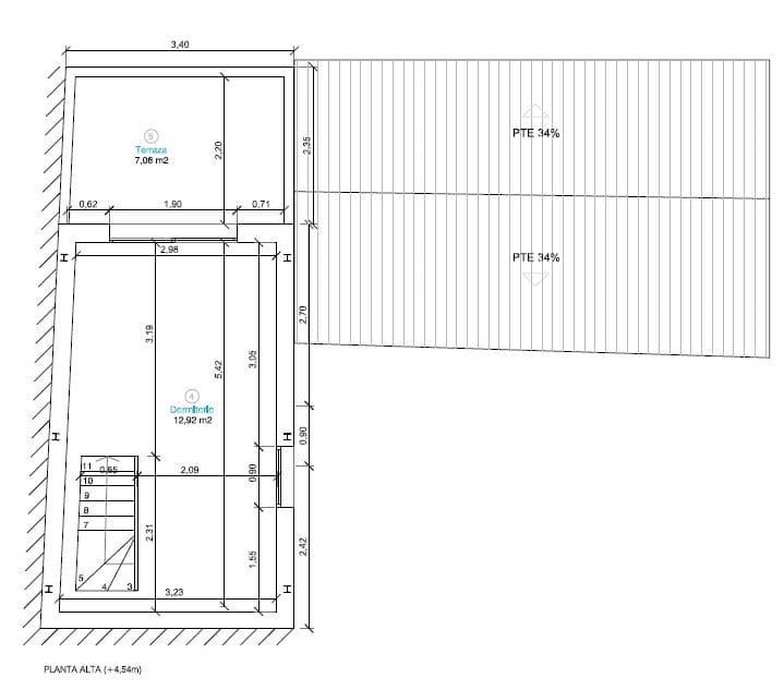
Con un pasaje central y las viviendas de morfología irregular dispuestas en torno al mismo, se accede a la vivienda objeto a través de una escalera situada en este mismo pasaje. La vivienda de planta en forma de L se desarrolla en planta primera y cubierta. 

El esta que presenta es de evidente deterioro debido a los muchos años que esta estuvo deshabitada. El reto fue recuperar la esencia a través del estudio e investigación de los materiales adecuados. Se reparan y refuerzan los muros de piedra existentes, practicando ampliaciones en los huecos de ventana existentes respetando el ritmo vertical y la escala de los mismos.  

El uso de la piedra de tarifa, el mortero de cal, la estructura de madera o los ladrillos de barro cocido que hacen de entablado para la cubierta de teja árabe reflejan esta cuidadosa intervención y devuelve al pueblo una de sus viviendas del centro histórico. 

La terraza con vistas al Castillo es sin duda el rincón mágico de esta vivienda. 

Reforma:

Previo

Más de nuestros proyectos

IMG-4257
CASA VIÑA 13
Rectangle 64 (1)
CASA TOMILLO 6
Rectangle 64
CASA CANELA 81
Rectangle 64 (4)
CASA ABETO 8
Rectangle 64 (3)
BODEGA DEHESA DEL ZARCO
Rectangle 64
CASA MENTA 13
Rectangle 64 (1)
VIVIENDA EN VERBENA 11
Rectangle 64
CASA CERRO 1
Rectangle 64
CASA VIÑA 13
Rectangle 64
APARTAMENTO HONDEROS 6
Ir al contenido